公寓案例當前位置:首頁>產品展示>公寓案例

- 詳細介紹


項目地址:公園三號
項目風格:簡 歐
設計師:姜 鎮 剛
項目經理:周 工
開工日期:2016年10月27日
設計說明:
簡約歐式風格大氣、更貼近于自然,也符合國人審美,因此近年在國內發展較快,但仍未普及。從字面意思分析,簡歐也就是簡化了的歐式裝修風格,但原先歐式風格的高雅仍然被保留了下來。近年來,隨著簡約室內設計風格的升級和傳統歐式風格的凈化,不少人開始推崇和追逐簡歐的家居風格。這種風格從整體到局部、從空間到室內陳設塑造,精雕細琢,給人一絲不茍的印象。
設計師:姜鎮剛

項目經理:周工

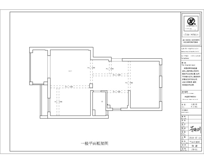
一樓原始結構圖:

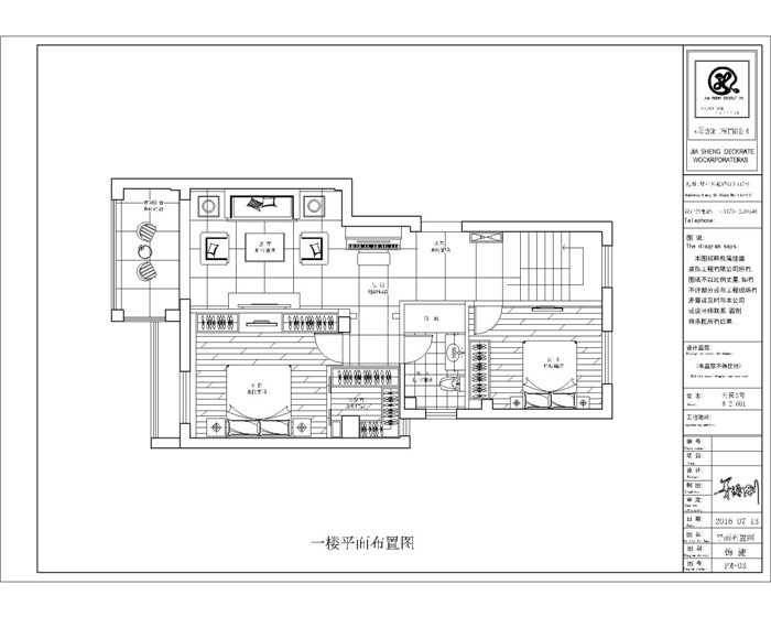
一樓平面布置圖:

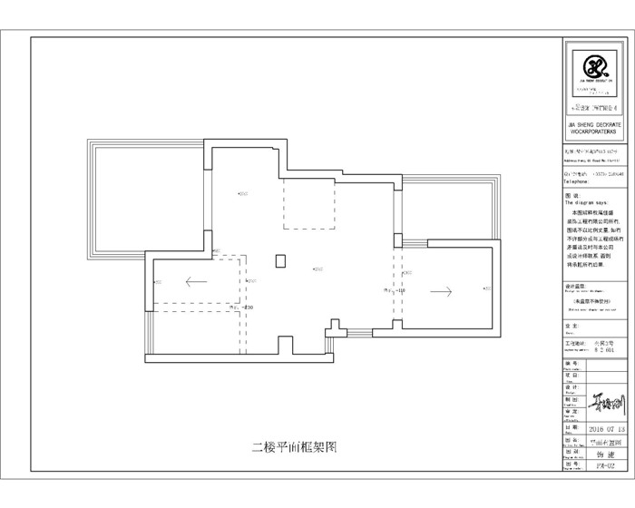
二樓原始結構圖:

二樓平面布置圖:

客廳效果圖:

臥室效果圖:

餐廳效果圖:

小區外景圖:

開工照:(業主、項目經理與設計師合影)




開工門套保護:

裝修期間材料堆放及注意事項標示:

煤氣表盤保護:

電梯口地貼保護:

水電完工圖:














泥工完工圖:


樓梯瓷磚鋪設好,保護膜整齊鋪墊


廚房煤氣保護套,整個施工過程都會保護著




木工完工圖:




走入式衣柜

佳盛裝飾公司簡介:
2003年,衢州市佳盛裝飾工程有限公司成立。其業務范圍包括:住宅 、公寓、娛樂空間、辦公空間、陳列展館等工程的裝飾裝修、設計及施工。公司秉承“服務到永遠”的經營理念,誠信打造透明工程,全力營造放心消費環境。用質量來表現,用服務來關懷,依靠客戶口碑來不斷提升佳盛品牌的知名度和影響力。
一直以來,“佳盛人”以客戶的新房我的家為宗旨,以品牌建設為中心,致力于創造完美空間,展現精湛工藝。 在設計上,崇尚人性化、多元化、藝術化、更加強調功能、結構和形式的完整,追求材料、技術、空間的表現深度與精確,創造出別具風格的工作和生活環境。用領先的設計和專業的施工,做品味空間的引領者!
2010年被評為衢州市裝飾行業協會副會長單位;
2011年被衢州市工商行政管理局評為衢州市家庭裝飾消費維權示范單位;
2012年家裝設計大賽中被衢州市廣播電視總臺評為觀眾最喜愛家裝設計獎;
2013年被評為衢州市裝修行業12315消費者維權聯絡站;
2012-2013年被衢州市柯城區住房城鄉建設局評為衢州市家裝行業骨干企業;
2014年被裝飾協會評為衢州市首批倡導綠色裝修單位;
2014年被衢州市工商行政管理局評為衢州市誠信裝飾公司;
2011-2016年被衢州晚報評為十家最值得信賴的裝飾企業;
2016年被市場監督管理局評為衢州市誠信裝飾企業;
佳盛裝飾,期待與您共同長期發展!
公司榮譽:


衢州市佳盛裝飾工程有限公司
地址:浙江省衢州市西區雙嶺南路285號(翡翠灣小區東側)
電話:0570- 3068373
手機:13867013688
聯系人:周先生
網址:m.bmpy.cn

衢州市佳盛裝飾工程有限公司
地址:浙江省衢州市西區雙嶺南路285號(翡翠灣小區東側)
電話:0570- 3068373
手機:13867013688
聯系人:周先生
網址:m.bmpy.cn
- 上一個:衢州公館俞總 下一個:月亮灣3-3-602返回產品列表



