別墅案例 當前位置:首頁>產品展示>別墅案例

- 詳細介紹
項目地址:歐景御花苑
項目風格:歐美風格
設計師: 林紫娟項目經理:毛 工
開工日期:2017年3月12日
設計說明:歐美風格具有簡單、抽象、明快的特點。而且多采用現代感很強的組合家具,顏色選用白色或流行色,室內色彩不多,一般不超過三種顏色,且色彩以塊狀為主。窗簾、地毯和床罩的選擇比較素雅,紋樣多采用二方連續或四方連續且簡單抽象,拒絕巴洛克式的繁復。其他的室內飾品要求造型簡潔,色彩統一。燈光以暖色調為主。
設計師:林紫娟

項目經理:毛工

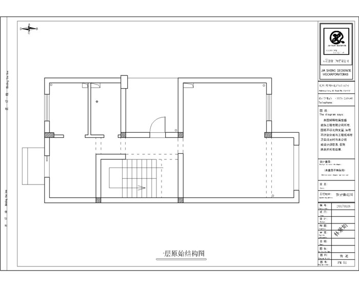
一層原始結構圖:

一層平面布置圖:

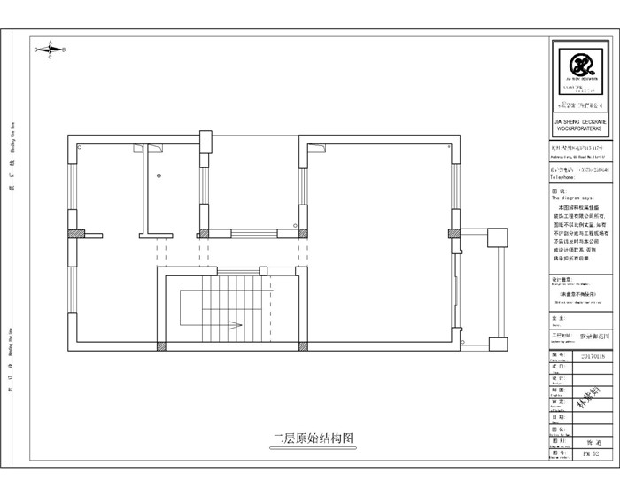
二層原始結構圖:

二層平面布置圖:

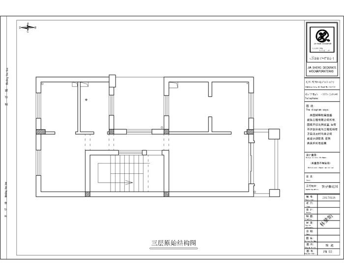
三層原始結構圖:

三層平面布置圖:

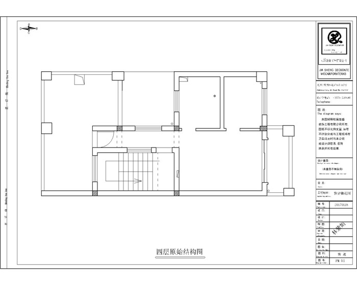
四層原始結構圖:

四層平面布置圖:

一樓客廳效果圖:

二樓客廳效果圖:

餐廳效果圖:

主臥效果圖:

二樓主臥效果圖:

三樓主臥效果圖:

別墅外景:


大8字擺放好 等待吉時~
由于客戶出差在外地,由佳盛設計師、項目經理開工~

開工禮炮

吉時到、點燃鞭炮~



開工門套保護、以防施工過程中磕碰到、


窗戶玻璃保護:

煤氣表盤保護:

開工現場、臨時馬桶

水電完工圖



i




衛生間藍墻防水


泥工完工圖:
瓷磚整齊鋪設完畢



衛生間瓷磚鋪設完畢,保護貼全面覆蓋:




衣柜完工:




木工吊頂完工:



客廳沙發線條簡潔的歐式沙發展現現代風格,高貴、典雅又不失浪漫氣質






臥室布置較為溫馨、主要以功能性、使用舒適作為考慮重點、





公司榮譽:


衢州市佳盛裝飾工程有限公司
地址:浙江省衢州市西區雙嶺南路285號(翡翠灣小區東側)
電話:0570- 3068373
手機:13867013688
聯系人:周先生
網址:m.bmpy.cn

衢州市佳盛裝飾工程有限公司
地址:浙江省衢州市西區雙嶺南路285號(翡翠灣小區東側)
電話:0570- 3068373
手機:13867013688
聯系人:周先生
網址:m.bmpy.cn
- 上一個:香格里拉5-1 下一個:南苑御景灣6-5返回產品列表



