公寓案例當前位置:首頁>產品展示>公寓案例

- 詳細介紹


項目地址:新城吾悅
項目風格:美式風格
設 計 師:姜 鎮 剛
項目經理: 周 工
開工日期:2017年8月18日風格說明:美式風格:家居自由隨意、簡潔懷舊、實用舒適;暗棕、土黃為主的自然色彩;
歐洲皇室家具平民化、古典家具簡單化;家具寬大、實用舒適;側重壁爐與手工裝飾,追求粗獷大氣、天然隨意
設計師:姜鎮剛

項目經理:周工

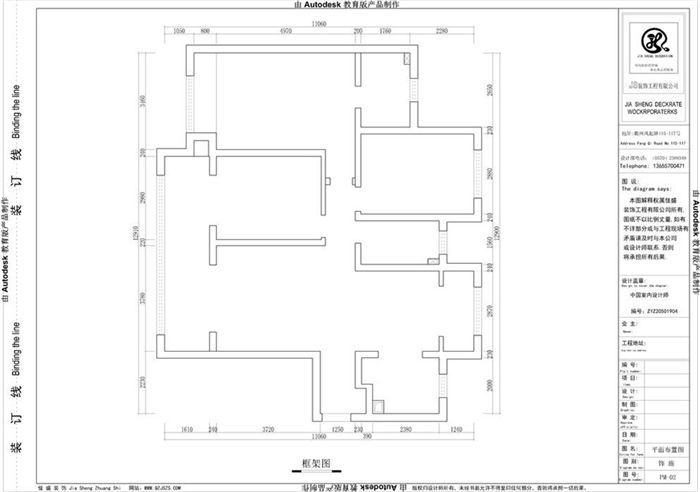
原始結構圖:

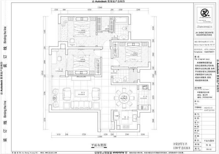
平面布置圖:

業主、項目經理、設計師合影慶祝開工

開工禮炮


擺“8”字,放爆竹,清除房子里一些不干凈的東西



開工第一錘 由業主響亮敲響

門套保護、門口瓷磚保護以防施工中磕碰


煤氣表盤保護:

下水管保護蓋以防堵塞

由項目經理帶領佳盛同仁一起,工地巡檢
業主和項目經理溝通、陽臺做燈帶問題

開始水壓測試

師傅給業主介紹:經過30分鐘的測試,水壓屬于正常狀態,一般普通家庭的水壓是在3公斤左右,
我們測試的是在10公斤,水壓指針沒有往下掉就屬于正常狀態

業主確認過水壓屬于正常范圍,滿意簽字:



水電完工,業主評價工地滿意度:

水電完工圖:






黃墻:防潮、防霉







泥工完工:



陽臺瓷磚鋪設完畢



衛生間瓷磚鋪設完畢



木工、吊頂完工:







佳盛裝飾公司簡介:
2003年,衢州市佳盛裝飾工程有限公司成立。其業務范圍包括:住宅 、公寓、娛樂空間、辦公空間、陳列展館等工程的裝飾裝修、設計及施工。公司秉承“服務到永遠”的經營理念,誠信打造透明工程,全力營造放心消費環境。用質量來表現,用服務來關懷,依靠客戶口碑來不斷提升佳盛品牌的知名度和影響力。
一直以來,“佳盛人”以客戶的新房我的家為宗旨,以品牌建設為中心,致力于創造完美空間,展現精湛工藝。 在設計上,崇尚人性化、多元化、藝術化、更加強調功能、結構和形式的完整,追求材料、技術、空間的表現深度與精確,創造出別具風格的工作和生活環境。用領先的設計和專業的施工,做品味空間的引領者!
2010年被評為衢州市裝飾行業協會副會長單位;
2011年被衢州市工商行政管理局評為衢州市家庭裝飾消費維權示范單位;
2012年家裝設計大賽中被衢州市廣播電視總臺評為觀眾最喜愛家裝設計獎;
2013年被評為衢州市裝修行業12315消費者維權聯絡站;
2012-2013年被衢州市柯城區住房城鄉建設局評為衢州市家裝行業骨干企業;
2014年被裝飾協會評為衢州市首批倡導綠色裝修單位;
2014年被衢州市工商行政管理局評為衢州市誠信裝飾公司;
2011-2016年被衢州晚報評為十家最值得信賴的裝飾企業;
2016年被市場監督管理局評為衢州市誠信裝飾企業;
佳盛裝飾,期待與您共同長期發展!
公司榮譽:


衢州市佳盛裝飾工程有限公司
地址:浙江省衢州市西區雙嶺南路285號(翡翠灣小區東側)
電話:0570- 3068373
手機:13867013688
聯系人:周先生
網址:m.bmpy.cn

衢州市佳盛裝飾工程有限公司
地址:浙江省衢州市西區雙嶺南路285號(翡翠灣小區東側)
電話:0570- 3068373
手機:13867013688
聯系人:周先生
網址:m.bmpy.cn
- 上一個:衢州公館俞總 下一個:荷花東路返回產品列表



