公寓案例當前位置:首頁>產品展示>公寓案例

- 詳細介紹
項目地址:公園三號
項目風格:簡約風格
設 計 師:小 林
項目經理:周 工
開工日期:2019年7月8日
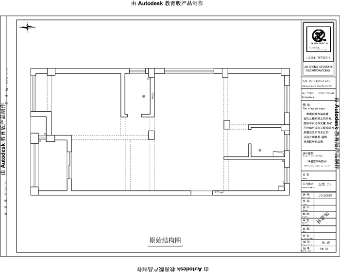
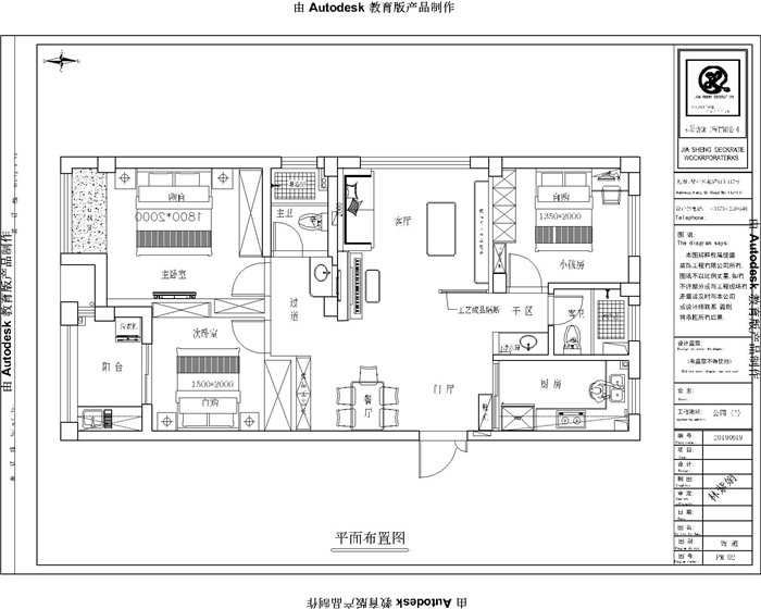
設計說明: 簡約不等于簡單,他是經過深思熟率后創新得出設計和思路的延展,不是簡單 堆徹 和平淡的 擺放 它是凝結著設計師的獨具匠心,既美觀又實用。原始結構圖:

平面布置圖:

客廳效果圖:

餐廳效果圖:

臥室效果圖:

業主、設計師、項目經理開工合影:

禮炮慶祝開工大吉:

舉杯慶祝 開工順順利利:

開工第一錘由業主敲響:


門套保護以防施工過程磕碰到:

窗戶玻璃保護:


煤氣表盤保護:

臨時馬桶:

水電完工:









泥工完工:





木工完工:






佳盛裝飾公司簡介
2003年,衢州市佳盛裝飾工程有限公司成立。其業務范圍包括:住宅 、公寓、娛樂空間、辦公空間、陳列展館等工程的裝飾裝修、設計及施工。公司秉承“服務到永遠”的經營理念,誠信打造透明工程,全力營造放心消費環境。用質量來表現,用服務來關懷,依靠客戶口碑來不斷提升佳盛品牌的知名度和影響力。
一直以來,“佳盛人”以客戶的新房我的家為宗旨,以品牌建設為中心,致力于創造完美空間,展現精湛工藝。 在設計上,崇尚人性化、多元化、藝術化、更加強調功能、結構和形式的完整,追求材料、技術、空間的表現深度與精確,創造出別具風格的工作和生活環境。用領先的設計和專業的施工,做品味空間的引領者!
2010年被評為衢州市裝飾行業協會副會長單位;
2011年被衢州市工商行政管理局評為衢州市家庭裝飾消費維權示范單位;
2012年家裝設計大賽中被衢州市廣播電視總臺評為觀眾最喜愛家裝設計獎;
2013年被評為衢州市裝修行業12315消費者維權聯絡站;
2012-2013年被衢州市柯城區住房城鄉建設局評為衢州市家裝行業骨干企業;
2014年被裝飾協會評為衢州市首批倡導綠色裝修單位;
2014年被衢州市工商行政管理局評為衢州市誠信裝飾公司;
2011-2016年被衢州晚報評為十家最值得信賴的裝飾企業;
2016年被市場監督管理局評為衢州市誠信裝飾企業;佳盛裝飾,期待與您共同長期發展!
公司榮譽:


衢州市佳盛裝飾工程有限公司
地址:浙江省衢州市西區雙嶺南路285號(翡翠灣小區東側)
電話:0570- 3068373
手機:13867013688
聯系人:周先生
網址:m.bmpy.cn
長按二維碼
關注【佳盛裝飾】
# 更多精彩內容 #

衢州市佳盛裝飾工程有限公司
地址:浙江省衢州市西區雙嶺南路285號(翡翠灣小區東側)
電話:0570- 3068373
手機:13867013688
聯系人:周先生
網址:m.bmpy.cn
- 上一個:府前一號劉總 下一個:衢州公館劉總返回產品列表



